2831 Ringling Boulevard, E#117, Sarasota, Florida 34237
Tel:+941.951.2816
Search
X
Search
Search
2831 Ringling Boulevard, E#117, Sarasota, Florida 34237
Tel:+941.951.2816
Toggle navigation
Menu
Portfolio
RESIDENTIAL
COMMERCIAL
HEALTHCARE CLINICS & OFFICES
INTERIOR IMAGES
FLOOR PLANS
About Us
PR
Videos
Inquiries
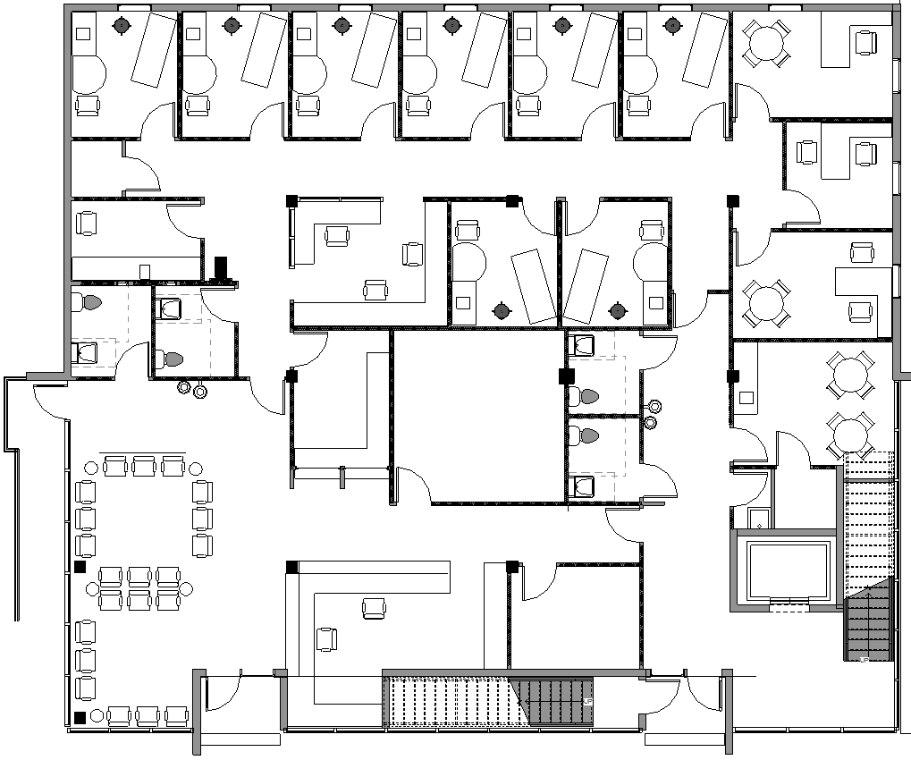
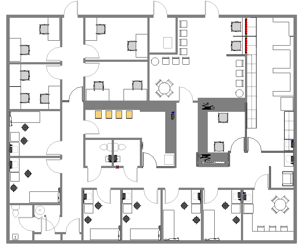
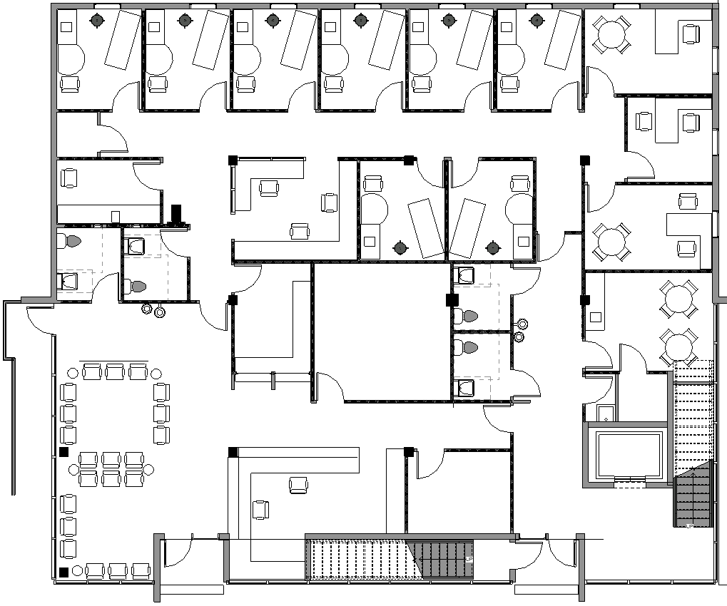
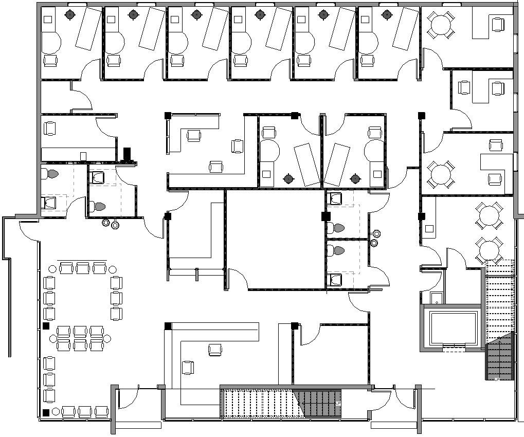
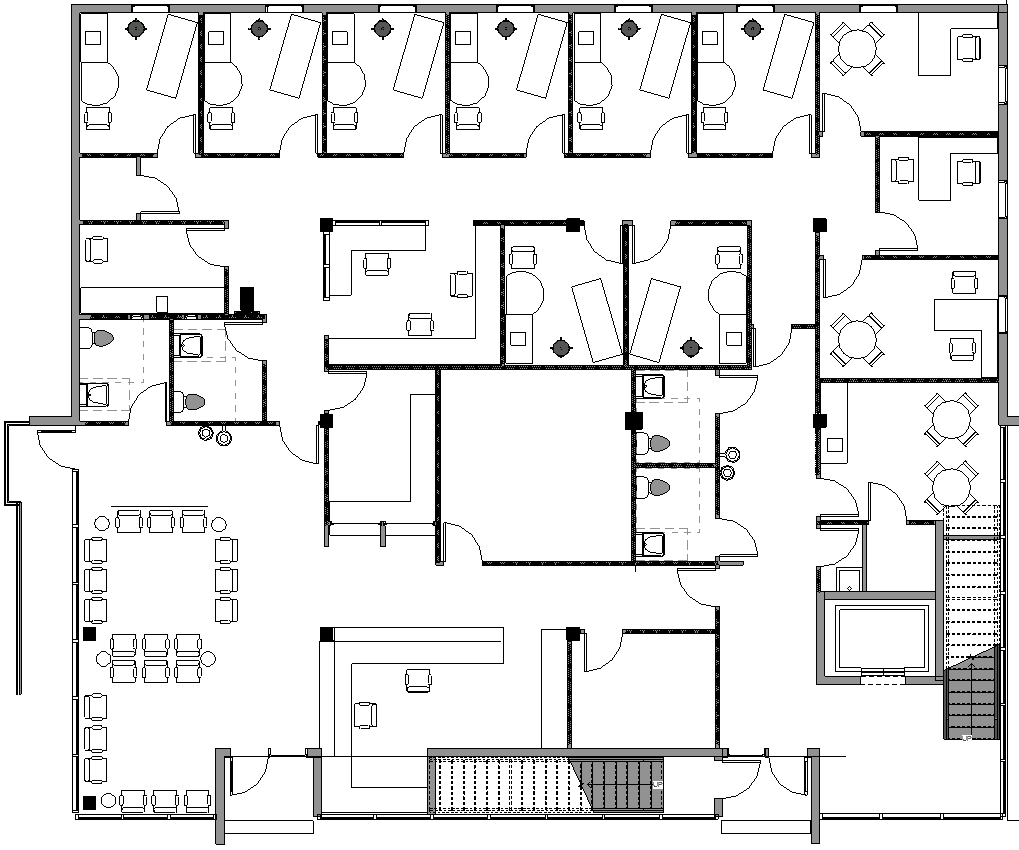
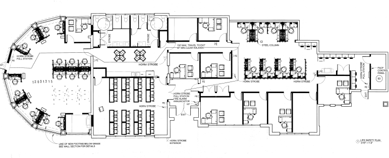
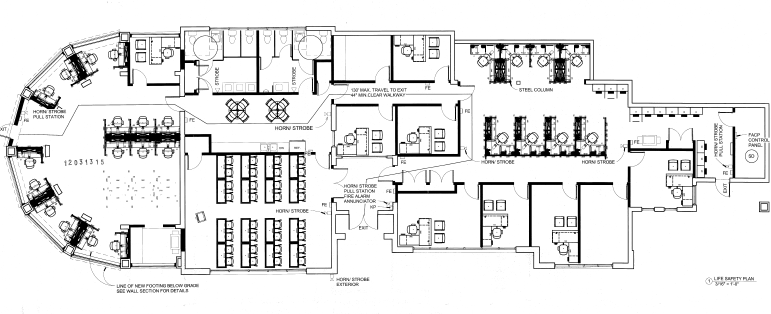
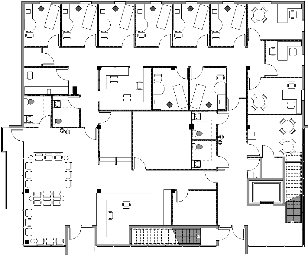
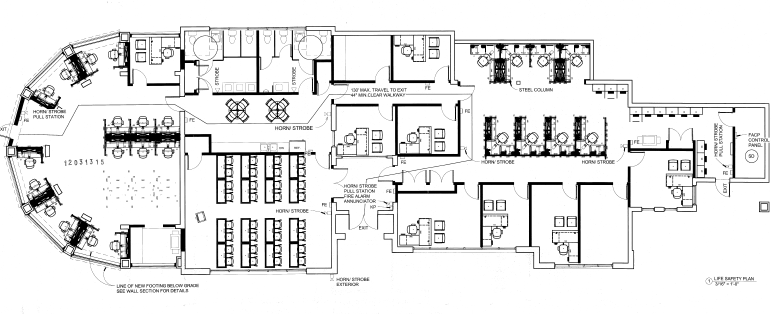
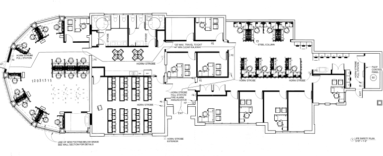
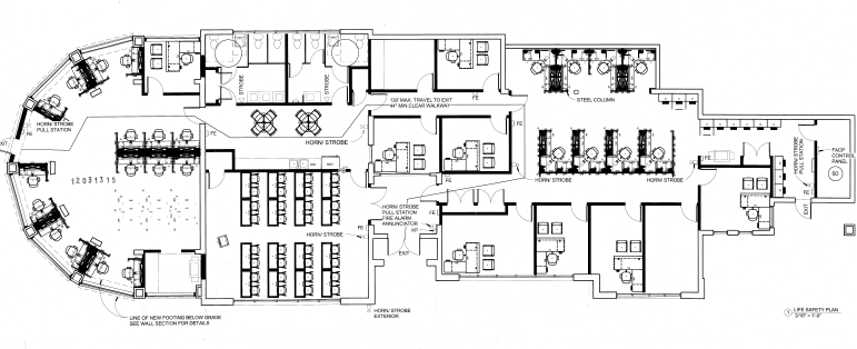
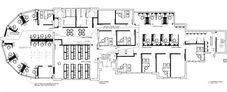
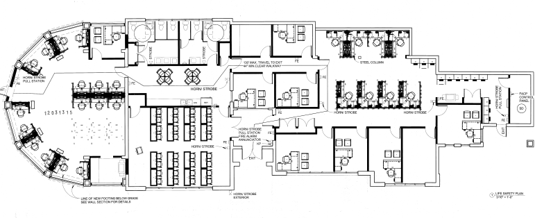
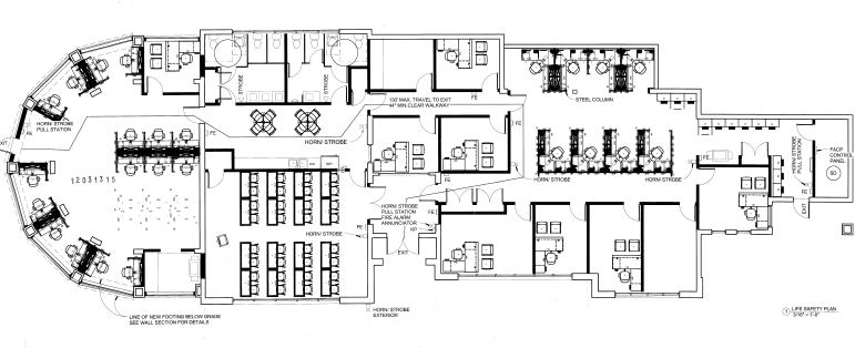
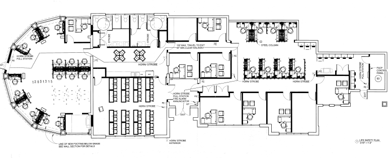
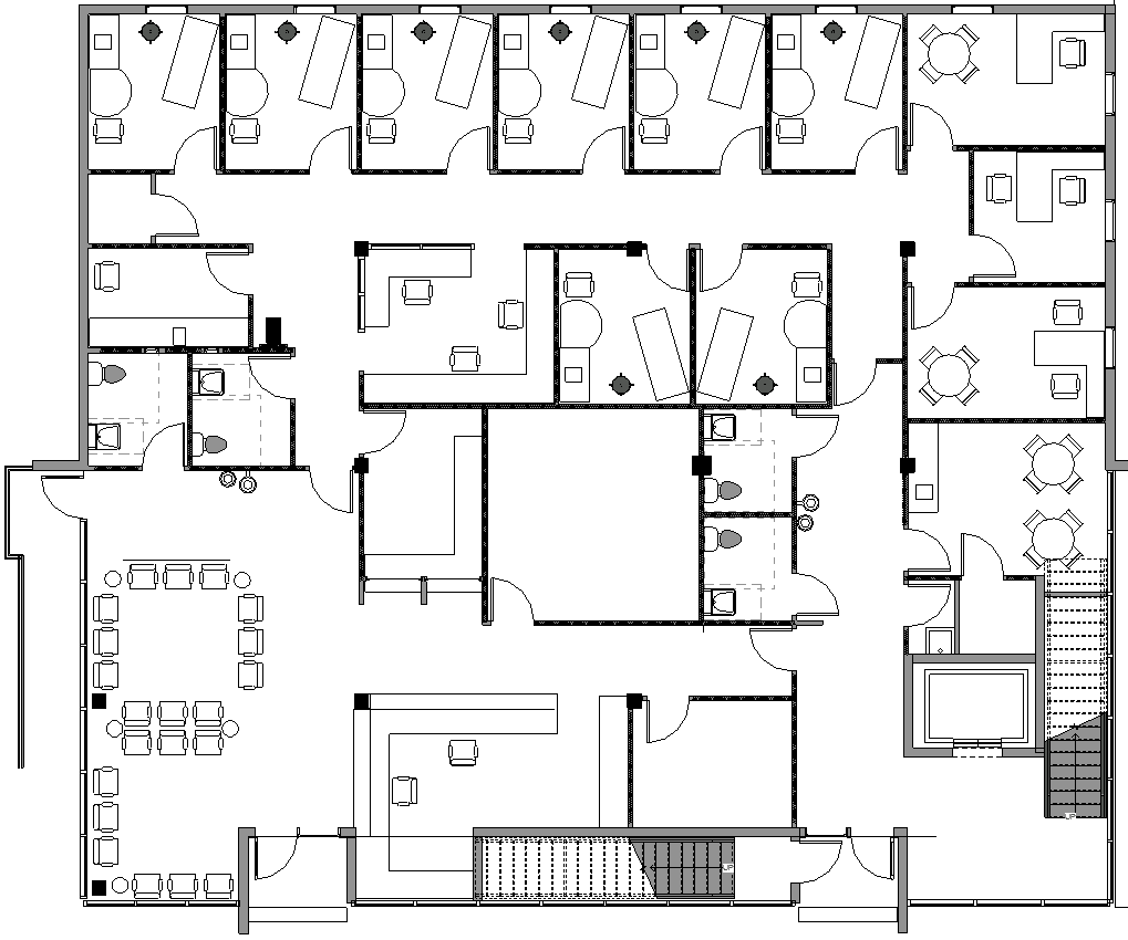
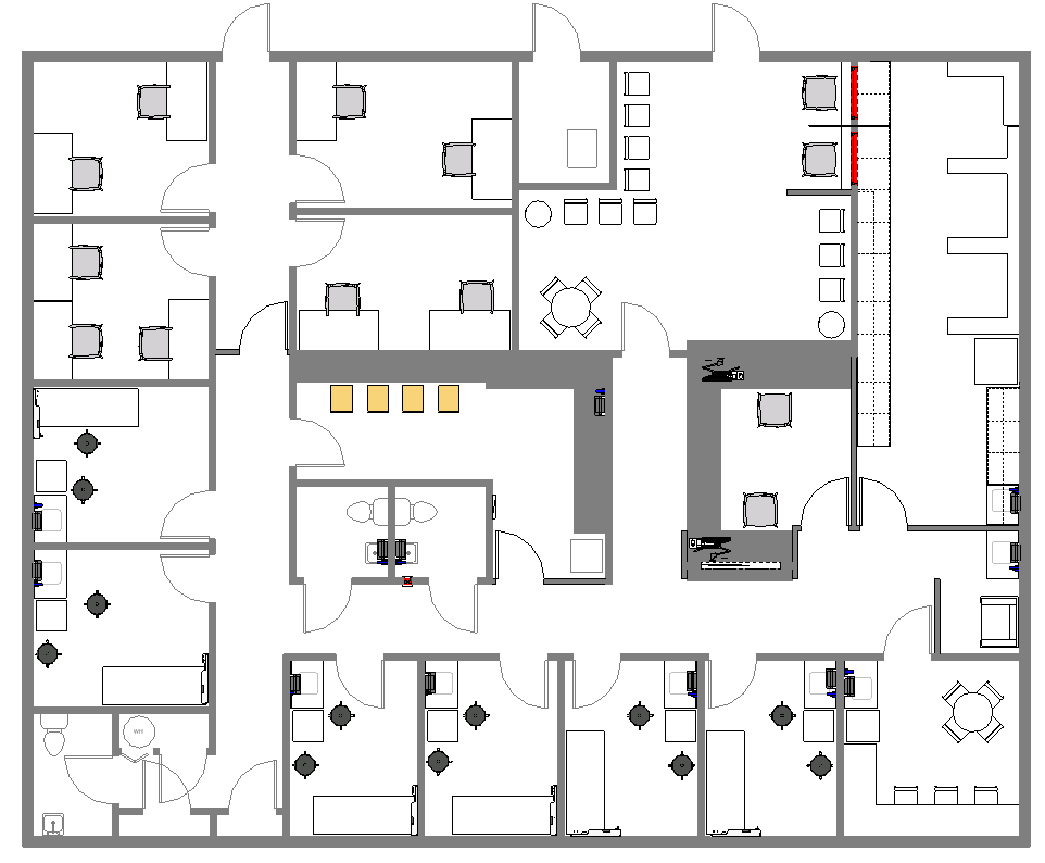
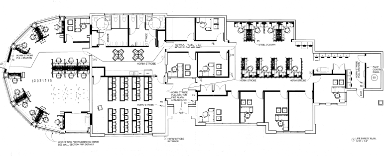
MEDICAL & DENTAL FLOOR PLANS
Share
Description